Wo suchen Sie?
** Gewerbefläche mit vier Zimmern zu vermieten **
Objekt ID: A9058
Leipzig - Gohlis-Mitte
Landsberger Straße 4
Gewerbe
4 Zimmer
Fläche ca. 121,94 m²
Mietobjekt
1'100 €
Kaltmiete:
1'465 €
Warmmiete
Provisionsfrei!
Provision
Energiepass Art:
Verbrauch
gültig bis:
25.04.2028
Verbrauchkennwert:
71,60 kWh/(m²a)
mit Warmwasser
✓
Energieeffizienzklasse:
B
ZUSATZINFORMATIONEN
Kaltmiete:
1'100,00 €
Warmmiete:
1'465,00 €
Nebenkosten:
365,00 €
Käuferprovision:
Kaution:
3'300,00 €
Wohnfläche ca.:
121,94 m²
Zimmer:
4,0
Externe Nummer
A9058
Stand:
14.04.2026
Ausstattung
Gasbefeuerung
✓
Personenaufzug
✓
verfügbar ab
FREI AB JANUAR 2027
Gruppennummer
3.4.7.
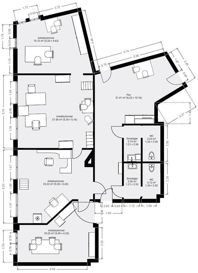
Objektbeschreibung
In Leipzigs bevorzugter Lage, dem nördlich vom Stadtzentrum gelegenen Stadtteil Gohlis, finden Sie die Landsberger Straße. Zahlreiche Einkaufsmöglichkeiten sowie Nahverkehrsmittel sind wenige Meter entfernt. In dem Objekt Landsberger Straße 4, welches mit einem Lift ausgestattet ist, haben Sie die Möglichkeit, eine Gewerbefläche im 5. Obergeschoss zu mieten. Die Einheit hat vier Zimmer sowie einen großen Empfangsbereich. Ferner gibt es zwei separate Sanitärbereiche. Ein Kellerabteil kann separat, zum Beispiel als Archiv, angemietet werden. Die Anmietung eines Tiefgaragenstellplatzes ist bei Bedarf und je nach Verfügbarkeit möglich. VERFÜGBAR AB JANUAR 2027
sonstige Angaben
Die Kaution beträgt 3 Monatskaltmieten.
Objektanschrift: Landsberger Straße 4
Interesse geweckt? Objekt ID: A9058
Wir freuen uns über Ihre Anfrage:
BSDImmo - Die professionelle Joomla OpenImmo Immobilien Software

